


+9voir plans et photos

29 St-Pierre(2), East-Angus
Offerte sur la rue Saint-Pierre, la maison de ville Mont-Écho propose une habitation fonctionnelle et lumineuse, idéale pour les familles souhaitant s’établir dans un environnement calme et accueillant.
Ce modèle se distingue par son aménagement efficace, ses espaces bien pensés et son design contemporain, offrant un milieu de vie confortable et facile à vivre au quotidien.
Implantée dans un secteur familial et paisible, à proximité des écoles, services et espaces verts, la propriété permet de profiter d’un quotidien pratique, tout en restant près de tout.
La maison de ville Mont-Écho représente une opportunité clé en main pour ceux qui recherchent un milieu de vie adapté à la vie de famille.
Un environnement accueillant, où il fait bon s’établir.
Remise de 4 000$ par la ville d'East Angus à l'achat d'une construction neuve !
Cuisine contemporaine
Grand îlot
Comptoir de stratifié
Hotte en acier inoxydable
Luminaires inclus
Armoires de cuisine au plafond
Ligne d'eau pour le frigo
Main courante en bois franc verni
Salle de bain avec bain-douche en céramique
Espace de lavage au sous-sol
Porte patio de 6 ′
Thermopompe
Revêtements de plancher :
Rez-de-chaussée : flottant & céramique 24 ″ X 24 ″
Escalier : tapis
Sous-sol (en option) : planchette de vinyle
Revêtement extérieur : vinyle
Portes & fenêtres blanches
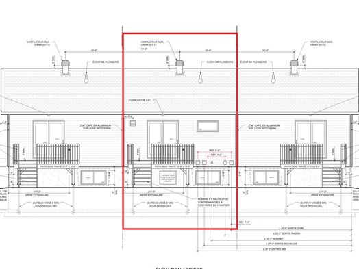
Patio 12 ′ X 12 ′
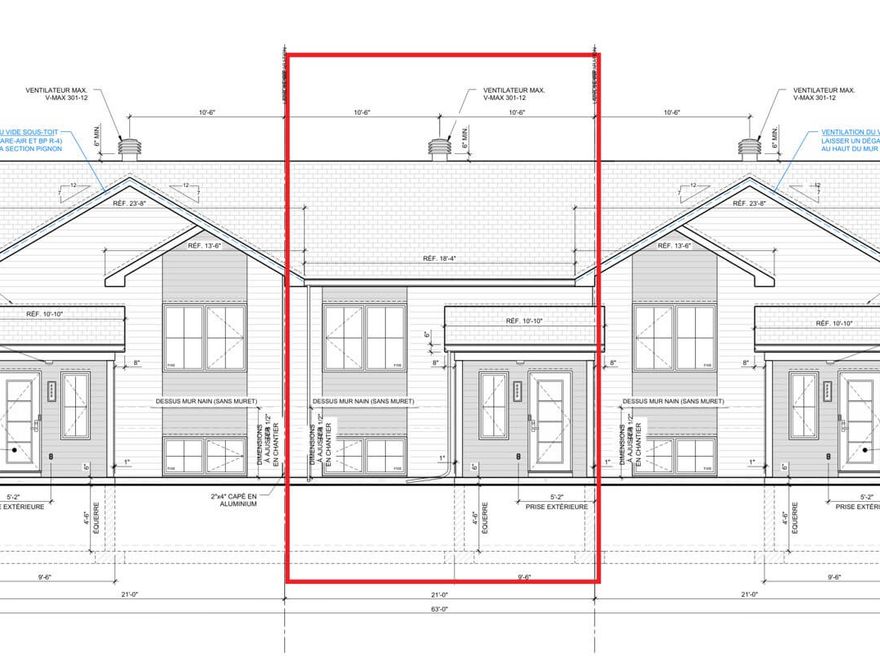
Bâtiment : 21′ x 40′ (820 pi²)
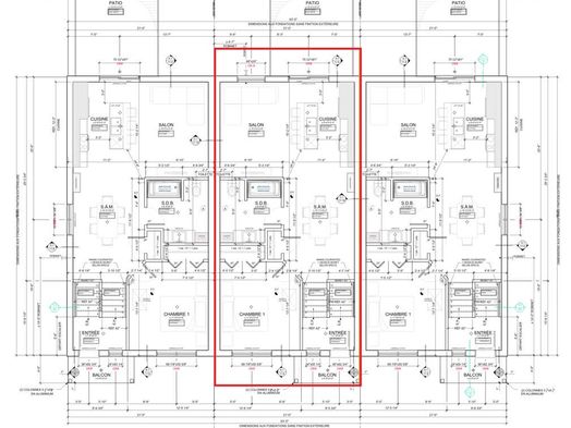
Rez-de-chaussée
Entrée : 7'-8'' x 4'-9'' (céramique)
Cuisine : 9'-4'' x 12'-3'' (flottant)
Salle à manger : 10'-1'' x 16'-2'' (flottant)
Salon : 10′-0″ x 13′-8″ (flottant)
Salle de bain : 8'-3" x 9'-0" (céramique)
Chambre #1 : 11'-6" x 12'-8" (flottant)
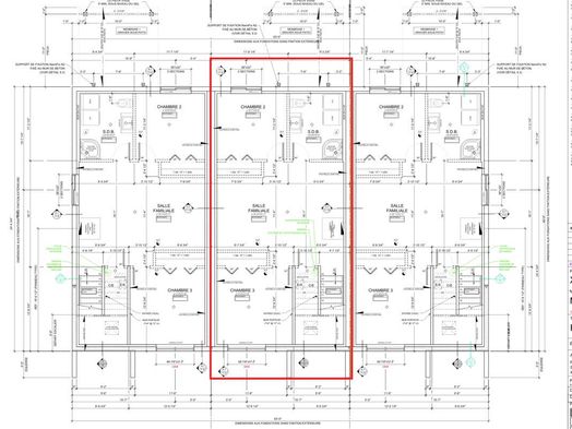
Étage
Sous-sol
OPTIONNEL
Chambre #2 : 10'-7'' x 10'-0" (planchette vinyle)
Chambre #3 : 11'-5" x 11'-6" (planchette vinyle)
Séjour : 19'-2" x 10'-11" (planchette vinyle)
Salle de bain : 8'-0" x 10'-0" (tuile vinyle)