


+1voir plans et photos

Homère, Sherbrooke
Modèle Éli avec garage – À vendre au Boisé Fabi, Rock Forest
Confort, fonctionnalité et emplacement de choix
Offert dans le nouveau développement Boisé Fabi, au cœur du très recherché secteur de Rock Forest, le modèle Éli avec garage propose une maison jumelée spacieuse et bien pensée, offrant un garage intégré et une disposition idéale pour répondre aux besoins des familles d’aujourd’hui.
Ce modèle se distingue par ses aires de vie ouvertes et lumineuses, sa cuisine avec îlot central, ses quatre chambres bien réparties sur deux niveaux ainsi que ses deux salles de bain complètes, assurant un parfait équilibre entre confort, fonctionnalité et qualité de vie. Le plan maximise chaque espace, tout en favorisant une circulation fluide et un quotidien pratique.
Implantée dans un quartier prisé, la propriété bénéficie d’une proximité immédiate des écoles, commerces et services, tout en offrant un environnement calme et harmonieux, idéal pour s’établir à long terme.
Le modèle Éli avec garage représente une opportunité clé en main pour ceux qui recherchent un jumelé offrant un garage intégré, un sous-sol aménagé avec salle familiale, ainsi que des espaces extérieurs comprenant balcon et patio, sans compromis sur la qualité ou l’emplacement.
Un cadre de vie à la hauteur de vos attentes, dans un quartier où il fait bon vivre.
Garage 13’ × 20’
Cuisine contemporaine
Grand îlot
Armoire au plafond 8’
Comptoir de stratifié
Hotte en acier inoxydable
Ligne d'eau pour le frigo
Main courante en bois franc verni
Salle de bain avec bain autoportant, douche vitrée et murs en céramique
8 luminaires inclus
Thermopompe
Espace de lavage au sous-sol
Porte patio de 6 ′
Revêtements de plancher :
Rez-de-chaussée : flottant & céramique 24 ″ X 24 ″
Escalier : tapis
Sous-sol (en option) : planchette de vinyle
Revêtement extérieur : vinyle
Portes & fenêtres blanches
Patio 12 ′ X 12 ′
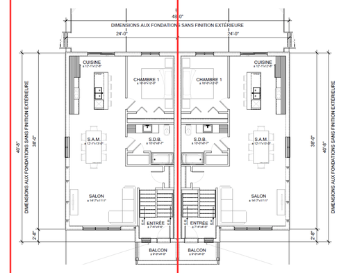
Bâtiment : 24′ x 41′ (936 pi²)
Rez-de-chaussée
Chambre 1: 10’-0’’ x 12’-0’’
Cuisine: 12’-1’’ x 12’-6’’
Salle à manger: 12’-1’’ x 13’-0’’
Salon: 14’-7’’ x 11’-1’’
Entrée: 7’-4’’ x 4’-6’’
Étage
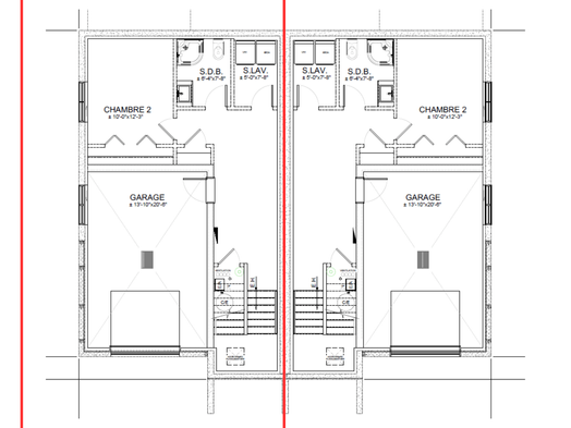
Sous-sol
Chambre 2 : 10’-0’’ x 12’-3’’
Salle de bain: 6’-4’’ x 7’-8’’
Salle de lavage: 5’-0’’ x 7’-8’’
Garage: 13’-10’’ x 20-6’’