Maison neuve à vendre | East-Angus
MODÈLE
Lot #6704923
À partir de
355 354 $
taxes et terrain inclus
Calculez vos mensualités- Maison de ville
- 1 salles de bain
- 1 chambres
- 1 étages
- 820 pi²
Inclusion de base
- Idéals pour les premiers acheteurs!
- Cuisine contemporaine
- Grand îlot
- Comptoir de stratifié
- Hotte en acier inoxydable
- Ligne d'eau pour le frigo
- Main courante en bois franc verni
- Salle de bain avec bain-douche en céramique
- Espace de lavage au sous-sol
- Porte patio de 6 ′
- Thermopompe
- Revêtements de plancher :
- Rez-de-chaussée : flottant & céramique 24 ″ X 24 ″
- Escalier : tapis
- Sous-sol (en option) : planchette de vinyle
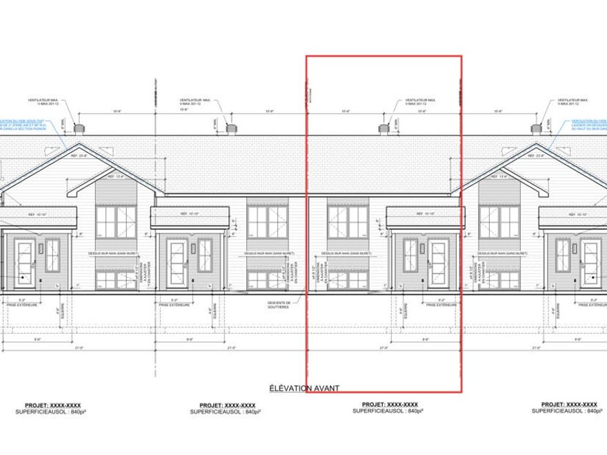
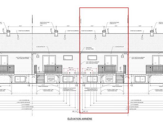
- Revêtement extérieur : vinyle
- Portes & fenêtres blanches
- Patio 12 ′ X 12 ′
- Luminaires inclus
- Armoires de cuisine au plafond
Dimensions
Bâtiment : 21′ x 40′ (820 pi²)
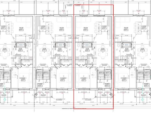
Rez-de-chaussée
- Entrée : 7'-8'' x 4'-9'' (céramique)
- Cuisine : 9'-4'' x 12'-3'' (flottant)
- Salle à manger : 10'-1'' x 16'-2'' (flottant)
- Salon : 10′-0″ x 13′-8″ (flottant)
- Salle de bain : 8'-3" x 9'-0" (céramique)
- Chambre #1 : 11'-6" x 12'-8" (flottant)
Étage
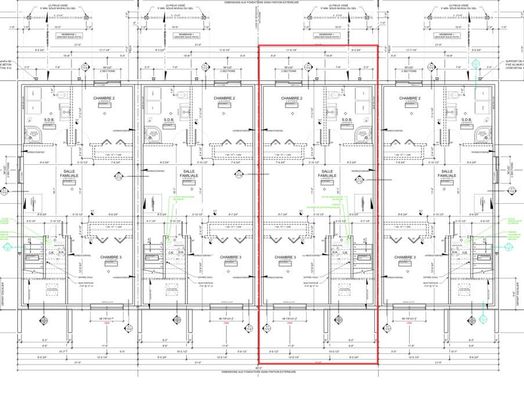
Sous-sol
- Optionnel:
- Chambre #2 : 10'-7'' x 10'-0" (planchette vinyle)
- Chambre #3 : 11'-5" x 11'-6" (planchette vinyle)
- Séjour : 19'-2" x 10'-11" (planchette vinyle)
- Salle de bain : 8'-0" x 10'-0" (tuile vinyle)